Как получить разрешение на перепланировку без нарушений законодательства

При изменении планировки квартиры важно помнить, что действия по переносу перегородок или изменению пространства в доме должны быть согласованы с органами, осуществляющими контроль за строительными нормами. В 2025 году порядок согласования перепланировок стал более строгим, и теперь нужно учитывать новые требования федеральных законов. Необходимо понимать, что любые изменения в конструкции дома или помещении, в том числе перенос перегородок, могут затронуть безопасность перекрытий и несущих конструкций, а потому должны быть проверены на допустимость.

Для того чтобы не нарушить закон, прежде всего нужно подать проект в многофункциональный центр (МФЦ), который выполняет роль посредника между вами и органами архитектуры. После того как проект будет рассмотрен, в реестре появляется информация о согласовании. Документы, которые нужно представить, включают техническое заключение, проект, а также документы, подтверждающие право собственности на помещение. На практике я часто сталкиваюсь с тем, что люди не знают, что некоторые изменения в квартире, например, перенос межкомнатной перегородки, нужно всегда согласовывать, даже если они не затрагивают несущие стены.

В 2025 году требования к проектам изменились. Теперь даже небольшие изменения, такие как перенос перегородок, требуют детального описания в проектной документации и согласования с органами, выполняющими контроль за строительством. Согласование проекта с органами архитектуры — это не просто формальность, а гарантия того, что изменения в доме не приведут к повреждениям перегородок или нарушению противопожарных норм.

В случае, если перенос перегородки не затрагивает несущие конструкции или перекрытия, возможно, не потребуется согласование. Однако для этого необходимо получить заключение от технического эксперта. Очень важно учитывать, что без правильного оформления и согласования можно столкнуться с последствиями, вплоть до штрафов или необходимости возврата квартиры в первоначальное состояние.

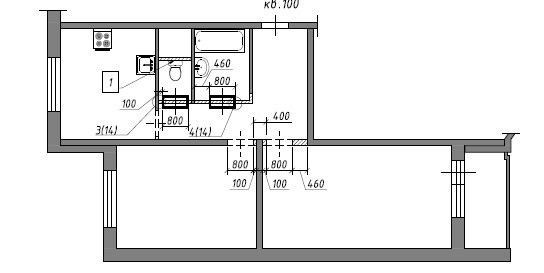
Варианты и примеры переноса перегородок

Варианты и примеры переноса перегородок

При переустройстве помещений, в частности при переносе перегородок, важно понимать, что каждый такой шаг требует четкого соблюдения установленных норм. На практике это может быть как перенос межкомнатной перегородки, так и изменение общей планировки квартиры, включая перенос стен, которые могут быть не только декоративными, но и частью несущих конструкций дома. Важно понимать, что любые изменения должны проходить через согласование с органами архитектуры, а для этого необходимо подготовить проект, который будет оценен на допустимость изменений с точки зрения безопасности здания и соблюдения федеральных норм.

Первый шаг в процессе изменения планировки — это подготовка проектной документации. Например, если вам нужно перенести перегородку, которая не является несущей, проект должен подтвердить, что такие изменения не повлияют на стабильность перекрытий или общую структуру квартиры. На этом этапе важно заручиться множеством документов, включая техническое заключение, которое подтверждает, что проектные решения не нарушат норм и стандартов. В некоторых случаях, особенно если изменения касаются несущих стен, может потребоваться участие проектировщика, который будет работать в тесном взаимодействии с архитектурным органом.

Примеры переноса перегородок

Перенос межкомнатной перегородки в квартире — это один из самых распространенных вариантов перепланировки. Важно помнить, что даже если перегородка не является несущей, она все равно должна быть согласована с органами архитектуры. На моей практике часто встречаются случаи, когда люди решают перенести перегородку без должного согласования и в итоге сталкиваются с проблемами при продаже квартиры или судебными разбирательствами. На основании законодательства такие изменения должны быть оформлены как проект перепланируемого помещения и зарегистрированы в реестре. Окончательное принятие решения зависит от тех, кто осуществляет проверку и подписывает проект.

Советуем прочитать:  Положение о системе оплаты труда гражданского персонала воинских частей

Согласование и порядок действий

Порядок согласования переноса перегородки включает подачу документов в многофункциональный центр (МФЦ), который затем передает их в органы архитектуры. В случае несоответствия проектных решений нормам или безопасности перекрытий, проект может быть отклонен. Все документы, включая проект и заключения, должны быть поданы в орган, осуществляющий контроль, для регистрации в реестре перепланировок. Как показывает практика, если проект прошел согласование, выполнение работ по переносу перегородки уже не вызывает проблем с органами власти. Однако даже после завершения работ необходимо уведомить органы архитектуры о проведенных изменениях.

Таким образом, процесс переноса перегородок требует тщательного подхода и соблюдения всех юридических норм, от проектирования до окончательной регистрации в реестре. Важно всегда помнить, что несоответствие проектных решений нормативам может привести не только к штрафам, но и к необходимости вернуть квартиру в первоначальное состояние, что значительно усложнит процесс и повысит расходы.

Кто выполняет перенос перегородок?

Перенос перегородок в квартире требует участия нескольких специалистов. Прежде всего, необходимо составить проект, который будет учитывать все особенности переустройства. Проект должен быть выполнен специалистами в области архитектуры и проектирования, которые смогут оценить допустимость переноса перегородок, а также их влияние на перекрытия и общую конструкцию здания. Важно помнить, что без участия квалифицированного архитектора или проектировщика выполнение такого рода изменений в доме может быть признано незаконным.

Порядок действий начинается с составления и подачи проекта в многофункциональный центр (МФЦ), который передаст его органу, осуществляющему контроль за строительными работами. Для этого нужно подготовить все необходимые документы, включая технические заключения, подтверждающие, что перенос перегородки не приведет к нарушению целостности конструкции или безопасности. После того как проект будет принят и одобрен, изменения будут зарегистрированы в реестре перепланировок.

Согласование переносов перегородок — это обязательный шаг, который нужно выполнить, прежде чем начать работы. На практике я часто сталкиваюсь с ситуациями, когда люди начинают работы по переносам перегородок, не пройдя согласования с органами архитектуры. Это чревато тем, что в дальнейшем такие изменения могут быть признаны незаконными, и придется возвращать квартиру в исходное состояние. Чтобы избежать подобных проблем, важно всегда обращаться в органы архитектуры и правильно оформлять проект, независимо от того, какие именно перегородки планируется переносить.

Ответственность за выполнение изменений лежит на владельце квартиры, который обязан предоставить все документы в порядке, установленном законодательством. Поэтому для законного выполнения переноса перегородок всегда нужно заручиться поддержкой профессионалов, чтобы избежать нарушений и возможных последствий, таких как штрафы или обязательное восстановление первоначального состояния помещений.

Всегда ли нужно согласовывать перенос межкомнатной перегородки?

Всегда ли нужно согласовывать перенос межкомнатной перегородки?

Согласование требуется в случае, если перенос перегородки затрагивает перекрытия или несущие стены. Например, если перенос перегородки нарушает допустимость нагрузки на конструкцию здания или меняет распределение веса, такие изменения должны быть зафиксированы в проектной документации. Если проект подразумевает перераспределение нагрузки или изменение планировки, необходимо подать документы в многофункциональный центр для получения одобрения от органов архитектуры.

Когда не нужно согласовывать перенос перегородки?

Если перегородка является ненесущей и перенос не затрагивает целостность помещений или перекрытий, согласование может не понадобиться. Важно помнить, что в таких случаях решение о необходимости согласования зависит от конкретного проекта и его соответствия строительным нормам. На практике часто встречаются ситуации, когда хозяева квартир, не затрагивая несущие конструкции, считают, что не обязаны согласовывать перенос перегородки. Это ошибочное мнение может привести к правовым последствиям, если изменения будут обнаружены в ходе проверки или при продаже недвижимости.

Советуем прочитать:  Как влияет наличие несовершеннолетних детей при покупке частного дома на собственность после их взросления?

Процесс согласования и последствия несогласованных изменений

Процесс согласования переноса перегородки начинается с подачи проекта в органы архитектуры и в многофункциональный центр. В проекте обязательно должны быть указаны все детали, касающиеся изменения конструкции, а также предоставлены все необходимые документы, включая технические заключения. Если проект проходит проверку и одобряется, он регистрируется в реестре перепланировок. В случае, если работы выполняются без согласования, органы архитектуры могут потребовать вернуть помещение в исходное состояние, а владельцу придется понести дополнительные расходы.

Согласование переноса межкомнатной перегородки. Порядок и необходимые документы

Согласование переноса межкомнатной перегородки. Порядок и необходимые документы

Первый шаг — это подготовка проекта, который должен отражать все изменения в планировке. Этот проект необходимо подать в многофункциональный центр (МФЦ), который выполняет роль посредника между вами и органами архитектуры. Важно, чтобы проект содержал все необходимые данные: техническое заключение, подтверждающее, что перенос перегородки не нарушает безопасность и не влияет на целостность перекрытий, а также планы с указанием новых мест расположения перегородок.

Необходимые документы для согласования

Для подачи в МФЦ и органов архитектуры потребуется комплект документов. Включает он проект с подробным описанием изменений, заключение от технического специалиста, подтверждающее допустимость изменений в конструктивных элементах, а также документы, удостоверяющие право собственности на квартиру. В случае, если планируется изменение, которое может повлиять на безопасность помещений, потребуется также заключение пожарной службы или других соответствующих органов.

Порядок согласования и возможные варианты

После подачи всех документов проект будет рассмотрен органами архитектуры. Если перенос перегородки не затрагивает несущие конструкции и не нарушает нормы безопасности, проект может быть одобрен, и изменения будут внесены в реестр. В противном случае, вам могут предложить внести корректировки в проект или провести дополнительные обследования, чтобы удостовериться в безопасности таких изменений. Важно понимать, что даже если изменения касаются только межкомнатных перегородок, согласование всегда требуется для законности выполнения работ и предотвращения возможных штрафов или обязательного возвращения квартиры в исходное состояние.

Перенос перегородок: как изменить планировку квартиры, чтобы не нарушить закон?

При переносе перегородок важно соблюдать порядок, установленный законодательством, чтобы избежать нарушений и последующих проблем. Каждый перенос перегородки в квартире требует согласования, особенно если это касается несущих конструкций или изменения нагрузки на перекрытия. Чтобы изменить планировку квартиры легально, необходимо выполнить несколько важных шагов.

Первым шагом является подготовка проекта, который будет отражать все изменения в планировке. Этот проект должен быть выполнен квалифицированным архитектором или проектировщиком, который сможет оценить допустимость переноса перегородки и его влияние на безопасность помещения. В случае, если перегородка не несущая, а изменения не затрагивают основные конструкции дома, проект может быть менее сложным, но все равно обязательным для согласования.

  • Документы: Вам потребуется проект, который должен содержать точное описание изменений, а также техническое заключение, подтверждающее безопасность проведения работ. Важно, чтобы проект включал все необходимые расчеты по нагрузке и изменениям в планировке.
  • Согласование с органами архитектуры: Подача проекта в многофункциональный центр (МФЦ) является обязательным шагом. МФЦ передает проект в органы архитектуры, которые осуществляют проверку на соответствие строительным нормам и стандартам безопасности.
  • Регистрация изменений: После согласования проекта все изменения должны быть зарегистрированы в реестре перепланировок. Это необходимо для того, чтобы изменения в плане квартиры были официально признаны и не вызвали проблем при продаже недвижимости или при проведении проверок.

Примеры изменений, которые не требуют согласования

Если перенос перегородки не затрагивает несущие конструкции, а также не изменяет общий план квартиры в части нагрузки на перекрытия, согласование может не понадобиться. Например, если вы решаете просто изменить место расположения межкомнатной перегородки в пределах одной комнаты, и она не влияет на целостность здания, согласование может не быть обязательным. Однако важно заранее проконсультироваться с архитектором, чтобы избежать проблем в будущем.

Советуем прочитать:  Дорожно-транспортные происшествия: Причины, методы предотвращения и правовые последствия

Порядок действий при переносе перегородки

Процесс изменения планировки квартиры, включая перенос перегородок, состоит из нескольких шагов:

  1. Подготовка проекта: Обратитесь к архитектору для разработки проекта, который включает все изменения, и обеспечьте его соответствие нормам безопасности.
  2. Подача документации: Передайте проект в МФЦ для дальнейшей проверки и согласования с органами архитектуры.
  3. Получение согласования: После проверки проекта органами архитектуры и одобрения его, зарегистрируйте изменения в реестре перепланировок.
  4. Выполнение работ: Только после получения официального разрешения приступайте к выполнению работ, чтобы не нарушить законодательство.

При соблюдении этих шагов, вы сможете изменить планировку квартиры, включая перенос перегородок, легально и без последствий для безопасности вашего дома и для вашей собственности.

Как избежать ошибок при согласовании перепланировки?

Прежде всего, необходимо четко определить, что именно планируется изменить в квартире. Например, перенос межкомнатной перегородки или изменение расположения дверей могут потребовать согласования, если затрагиваются несущие конструкции или перекрытия. В таких случаях требуется проект, который будет проверен органами архитектуры. На практике, это часто приводит к необходимости получения технического заключения, подтверждающего, что изменения не нарушат безопасность здания и не приведут к перегрузке конструкций.

Ошибки могут возникнуть и из-за недостаточности документов. Для подачи в многофункциональный центр (МФЦ) необходимо предоставить не только проект, но и техническое заключение о допустимости переноса перегородки, а также документы, подтверждающие право собственности на квартиру. Часто жильцы ошибаются, думая, что достаточно только проекта. Однако без дополнительных документов, таких как заключение инженера, согласование будет невозможно.

Ошибки, которых следует избегать

  • Неправильное определение необходимости согласования: Например, многие владельцы считают, что можно изменить планировку квартиры, не согласовывая перенос ненесущей перегородки. Однако даже такие изменения могут потребовать согласования в зависимости от других факторов.
  • Отсутствие необходимых документов: Без полного пакета документов, включая проект и технические заключения, процесс согласования затянется, а возможно, и вовсе не состоится.
  • Игнорирование нормативных актов: Важно соблюдать федеральные законы и местные нормативы в сфере строительства и реконструкции. Нарушение этих норм может привести к штрафам и необходимости восстанавливать исходное состояние квартиры.

Как правильно подготовиться к согласованию

Во-первых, подготовьте подробный проект, который будет включать все изменения и подтверждать их безопасность для здания. Во-вторых, обратитесь к специалистам для получения технического заключения, которое удостоверит допустимость переноса перегородки или изменения перекрытий. В-третьих, подайте проект в многофункциональный центр, чтобы он был проверен и одобрен органами архитектуры. Важно помнить, что любые изменения в квартире, касающиеся несущих конструкций, обязательно должны быть зафиксированы и зарегистрированы в реестре перепланировок.

Таким образом, соблюдая эти простые, но важные шаги, вы сможете избежать распространенных ошибок и эффективно согласовать изменения в планировке квартиры.

Понравилась статья? Поделиться с друзьями:
Adblock
detector